




ambiente arch
we create not
only interior
design but the
style of your
personality

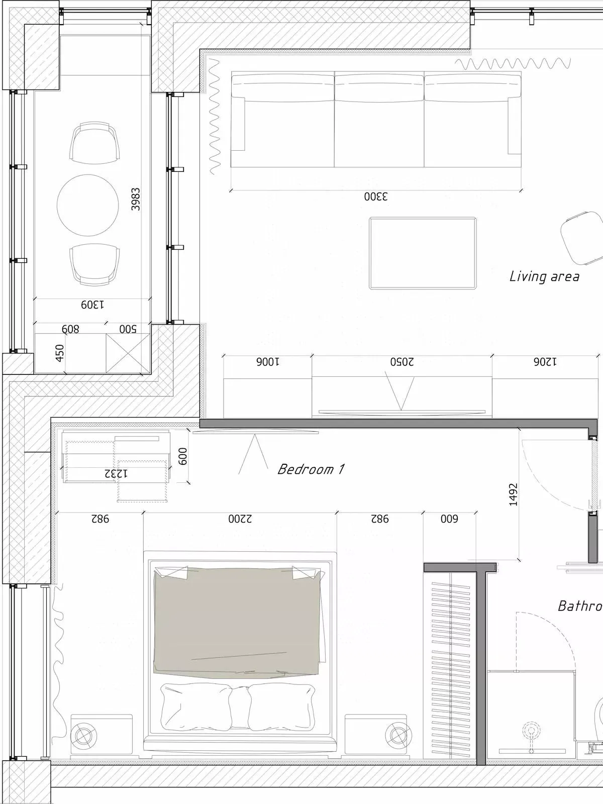
Space Planning
Comprehensive layout design that maximizes the functionality and flow of a room or an entire property, ensuring every area serves its intended purpose efficiently.

Interior Styling
Our interior design service brings character and cohesion to your space through carefully selected decor, colors and accessories. We carefully organize each element to create a balanced atmosphere that reflects your personality.

Lighting Design
Lighting transforms a space, and our Lighting Design service is designed to create the perfect ambience in every area of your home. We fit different types of lighting, taking into account your lifestyle and design preferences.




featured in
A curated collection of interviews and articles from top magazins, offering insight into our work, values and design philosophy.
when
style
emerges
Whether a complete makeover or a light update, Ambientearch helps you realize your design ideas quickly with quality.







